Welcome
Graduate Work
Undergraduate Work
Professional Work
Awards
Kaustubh Mhatre
Welcome
Graduate Work
Undergraduate Work
Professional Work
Awards
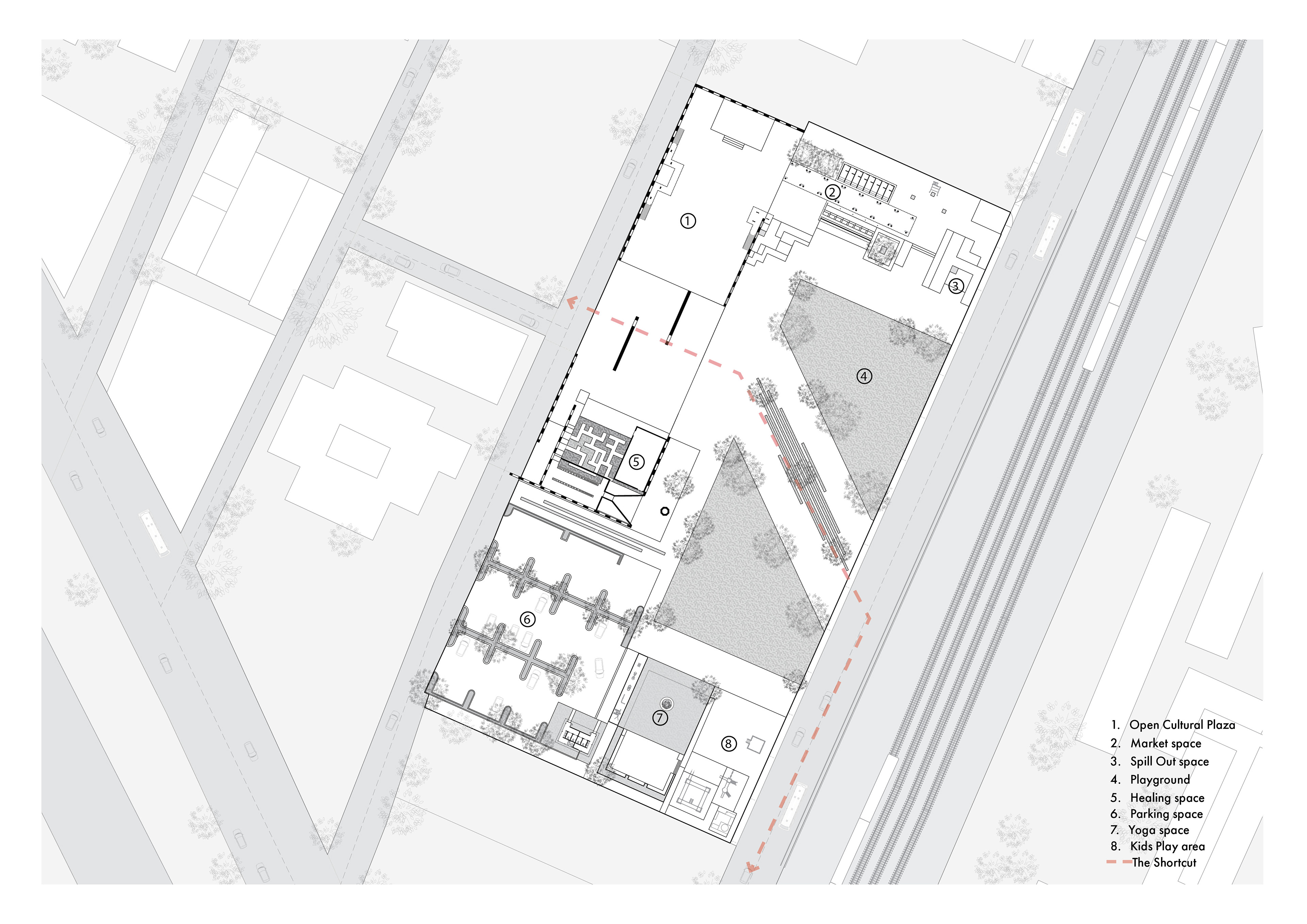
Re-incarnation of Shakti Mills
↑
Back to Top